Produkty dle kategorieAutomatické dveřePower Turn

Power Turn

Power Turn

Pohon pro otvíravé dveře na dveře o maximální váze 300kg  do šíře dveří 1600mm.

Tento pohon lze použít pro jednokřídlé i dvoukřídlé dveře, obyčejné i protipožární.

Díky svým kombinačním možnostem a univerzálnímu designu je Powerturn řešením pro veškeré vestavby a průchody, dveře reprezentačních vstupních prostor nebo pro multifunkční bezpečnostní dveře, i např. dveře na nouzových a únikových cestách. 

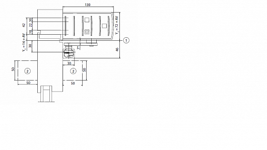
  • výška pohonu 70mm
  • hloubka pohonu 130mm

Soubory ke stažení

Technická data

Chci se zeptat ..

Zeptejte se na cokoli
Jsme tu pro Vás ..

Děkujeme za váši zprávu. Naši pracovníci se vám ozvou v pracovní dny mezi 8:00-16:00.
Formulář se nepovedl odeslat.
Zkuste to prosím znovu.
Pokud problém trvá, kontaktujte nás přímo na +420 222 586 007 .